石家庄市自然资源和规划局
关于功率薄层硅外延片产业化项目的公示通告
关于功率薄层硅外延片产业化项目的公示通告
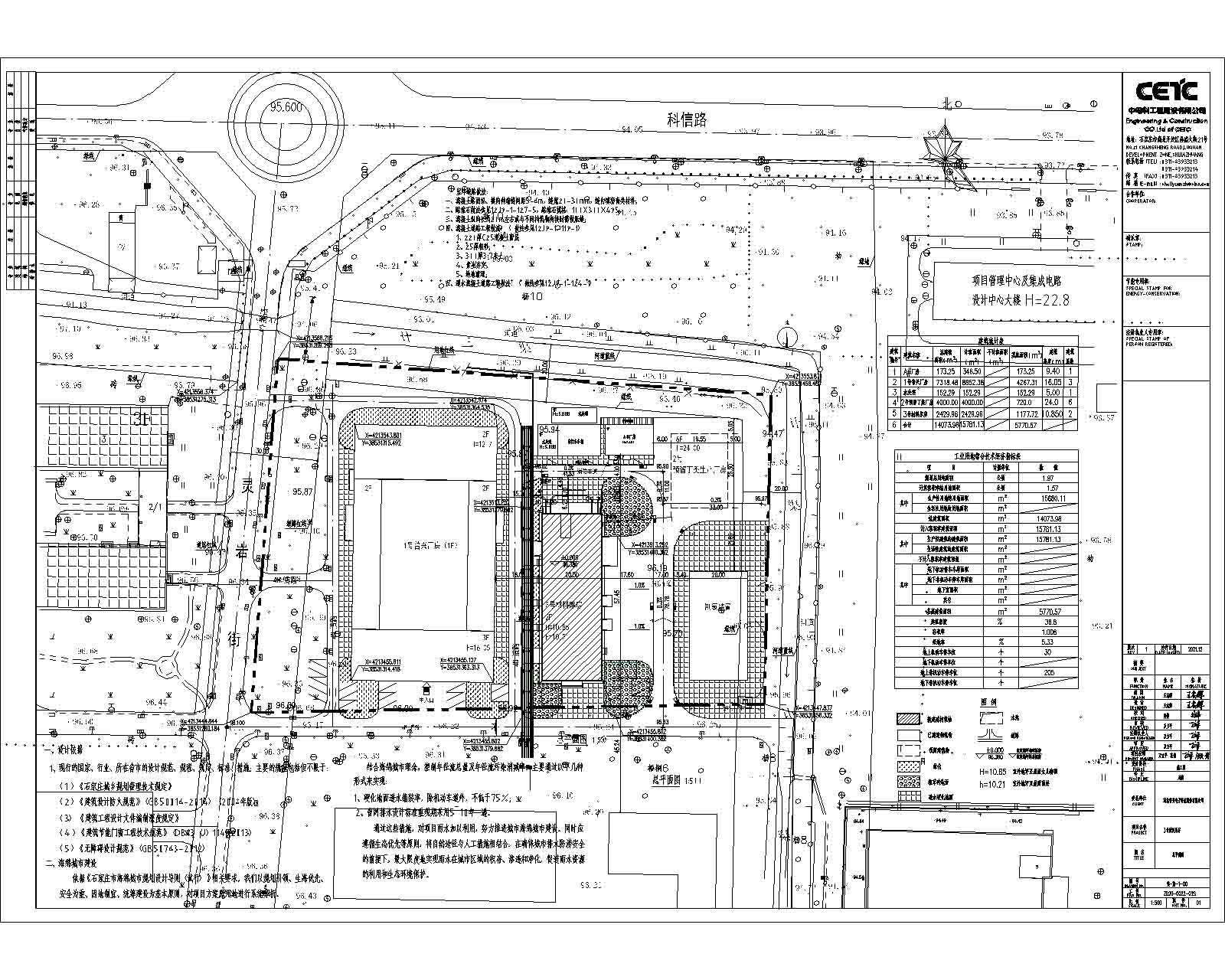
我局受理了河北普兴电子科技股份有限公司功率薄层硅外延片产业化项目建设规划方案的申请。该项目位于鹿泉经济开发区昌盛大街21号,用地面积19659.3平方米,容积率1.006,本次报建3号材料库房建筑面积2429.96平方米。
根据《中华人民共和国行政许可法》、《中华人民共和国城乡规划法》的有关规定,现就规划方案向社会予以公示,广泛征求和听取利益相关者的意见和建议。如以上申请事项影响到或可能影响到您的权益,你应在公示期10天内(按公示当日时间计算)通过书面或电话形式向石家庄市自然资源和规划局鹿泉分局提出意见,利害关系人有申请听证的权利。相关查询请登陆鹿泉区政府门户网站(),有效意见反馈途径为石家庄市自然资源和规划局鹿泉分局。
联系电话:石家庄市自然资源和规划局鹿泉分局 82189308
附:1、项目总平面图
2022年1月5日
