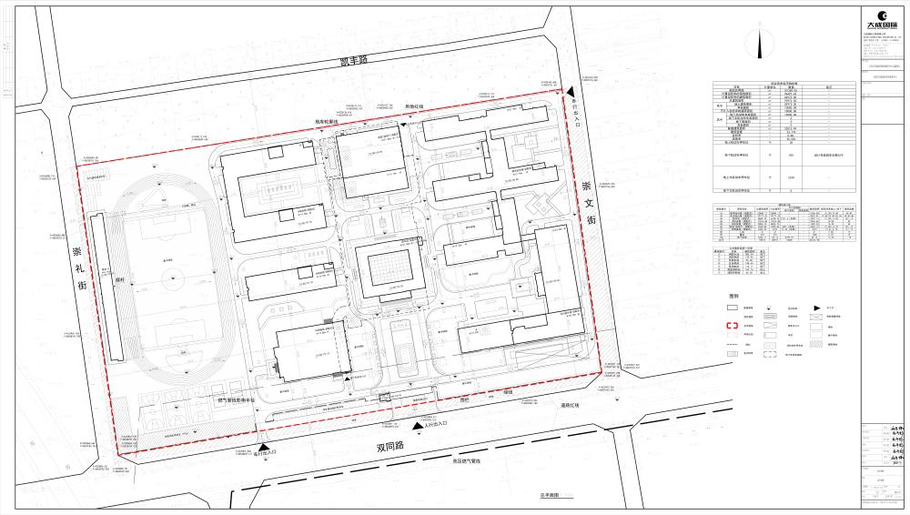
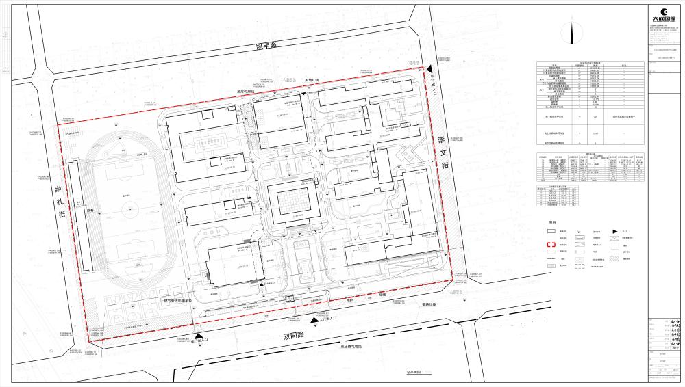
石家庄市自然资源和规划局鹿泉分局关于“石家庄市鹿泉区职业教育中心迁建项目”规划方案的公示通告
我局正在对石家庄市鹿泉区职业教育中心申报的石家庄市鹿泉区职业教育中心迁建项目”规划方案进行审查。该项目位于李村镇同阁村,西柏坡高速以东、双同路北侧,用地性质为中等专业学校用地,总用地面积101359.05平方米,容积率0.88、建筑高度35.5米。
根据《中华人民共和国行政许可法》、《中华人民共和国城乡规划法》的有关规定,现就规划方案向社会予以公示,广泛征求和听取利益相关者的意见和建议。如以上申请事项影响到或可能影响到您的权益,你应在公示期10天内(按公示当日时间计算)通过书面或电话形式向鹿泉分局提出意见,利害关系人有申请听证的权利。相关查询请登录中国鹿泉() ,有效意见反馈途径为鹿泉分局。
联系电话: 82019499
附 件: 项目总平面图
2024年11月21日
