欢迎访问鹿泉区人民政府网站!
无障碍浏览进入适老化繁体版 丨 简体版
首页  > 政府信息公开  > 法定主动公开内容  > 行政执法公示  > 执法机关  > 自然资源和规划局  > 事前事后公开  > 事前公开
石家庄市自然资源和规划局关于绿阳E谷孵化基地一期项目的公示通告
2025-10-28  来源:石家庄市自然资源和规划局鹿泉分局  浏览次数:1
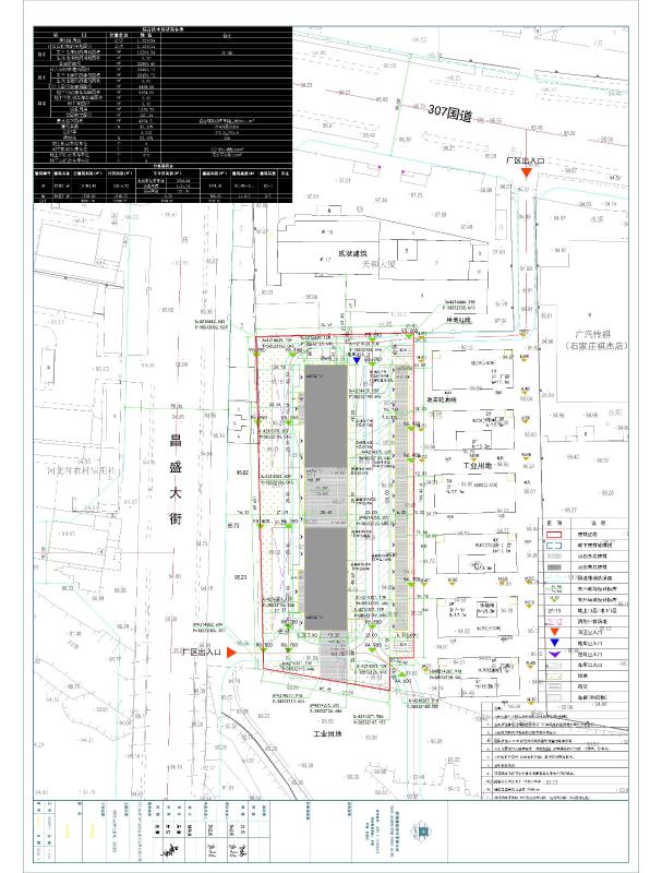
 我局正在审查河北省绿阳产城融合建设发展有限公司绿阳E谷孵化基地一期项目的规划方案。该项目位于河北鹿泉经济开发区方台村,用地面积12200.34平方米,容积率2.332,绿地率20%,建筑面积32890.40平方米。
根据《中华人民共和国行政许可法》、《中华人民共和国城乡规划法》的有关规定,现就规划方案向社会予以公示,广泛征求和听取利益相关者的意见和建议。如以上申请事项影响到或可能影响到您的权益,你应在公示期10天内(按公示当日时间计算)通过书面或电话形式向石家庄市自然资源和规划局鹿泉分局提出意见,利害关系人有申请听证的权利。相关查询请登录鹿泉区政府门户网站(http://www.sjzlq.gov.cn),有效意见反馈途径为石家庄市自然资源和规划局鹿泉分局。
联系电话:石家庄市自然资源和规划局鹿泉分局  82189308                                   
附:项目总平面图                                  
                                 2025年10月28日