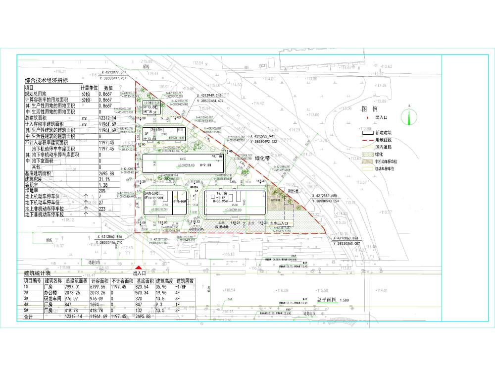
根据《河北鹿泉经济开发区管理委员会关于申请开发区横山村一宗工业用地带方案出让的请示》及《石家庄市国有建设用地带方案出让实施方案(试行)》,我局正在审查开发区横山村一宗工业用地的规划设计方案,该宗工业用地位于鹿泉经济开发区横山村,东至源泉渠、南至御园路、西至储备地、北至源泉渠,用地面积约8667平方米,容积率1.38,总建筑面积12312.14平方米。
根据《中华人民共和国行政许可法》、《中华人民共和国城乡规划法》的有关规定,现就规划方案向社会予以公示,广泛征求和听取利益相关者的意见和建议。如以上申请事项影响到或可能影响到您的权益,你应在公示期10天内(按公示当日时间计算)通过书面或电话形式向石家庄市自然资源和规划局鹿泉分局提出意见,利害关系人有申请听证的权利。相关查询请登录鹿泉区政府门户网站(http://www.sjzlq.gov.cn),有效意见反馈途径为石家庄市自然资源和规划局鹿泉分局。
联系电话:石家庄市自然资源和规划局鹿泉分局 82189308
附:总平面图
2025年9月25日