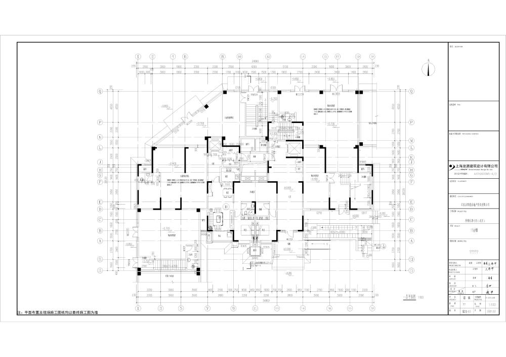
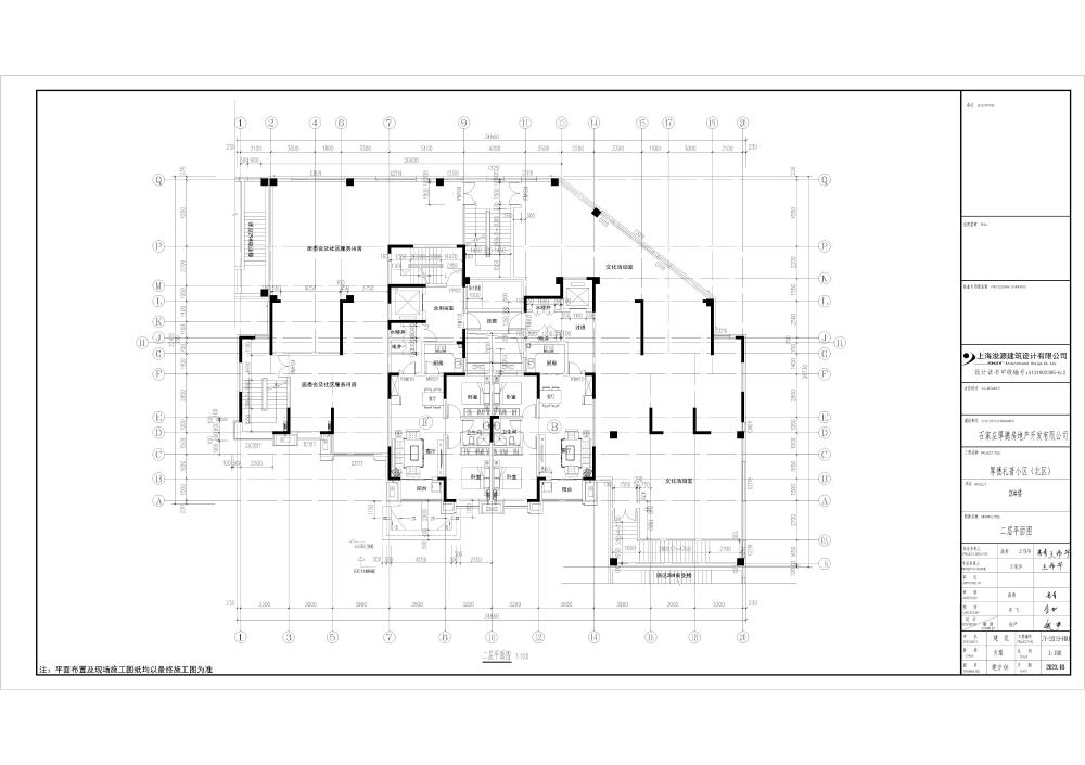
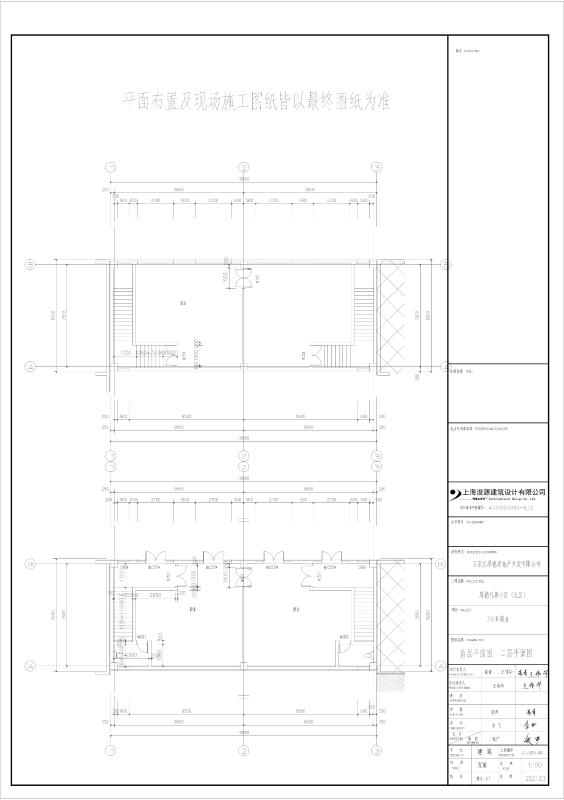
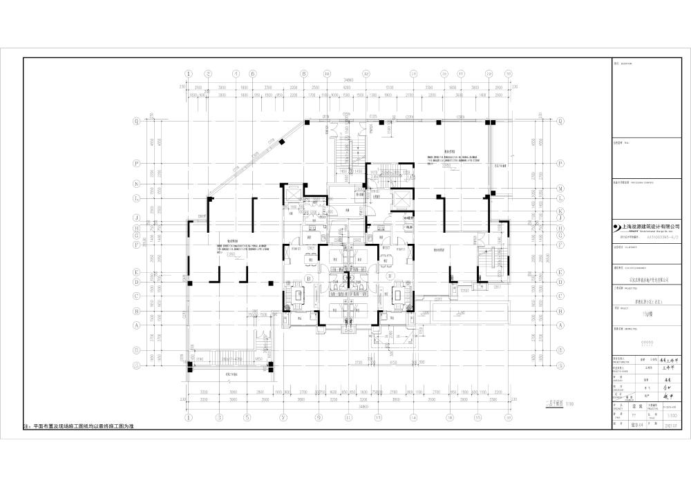
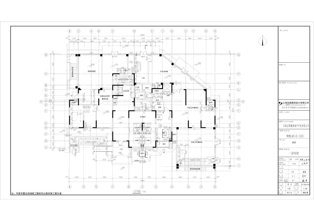
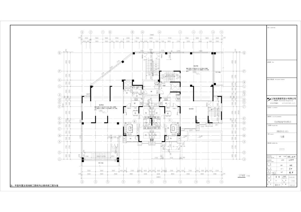
我局正在对石家庄厚德房地产开发有限公司申报的“厚德礼著小区(北区)”项目中19#、20#住宅楼及26#商业面积调整进行审查。该项目位于获鹿镇七街村,用地性质为居住用地,本次对19#、20#住宅楼及26#商业中商业面积进行调整,调整后总建筑面积及各项公共配建面积不变。
根据《中华人民共和国行政许可法》、《中华人民共和国城乡规划法》的有关规定,现就规划方案向社会予以公示,广泛征求和听取利益相关者的意见和建议。如以上申请事项影响到或可能影响到您的权益,你应在公示期10天内(按公示当日时间计算)通过书面或电话形式向鹿泉分局提出意见,利害关系人有申请听证的权利。相关查询请登录中国鹿泉(http://www.sjzlq.gov.cn) ,有效意见反馈途径为鹿泉分局。
联系电话: 82019499
附 件: 原审批平面图、调整后平面图
2024年4月24日
