石家庄市自然资源和规划局关于泰威航科全动模拟器生产基地项目的公示通告
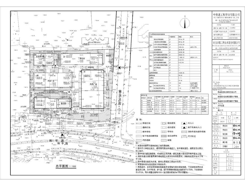
我局正在审查泰威航空科技有限责任公司泰威航科全动模拟器生产基地项目的规划方案。该项目位于鹿泉区获鹿镇南海山村、开发区南城新村,用地面积33166.39平方米,容积率1.11,绿地率20.46%,本次报批总建筑面积23735.99平方米。
根据《中华人民共和国行政许可法》、《中华人民共和国城乡规划法》的有关规定,现就规划方案向社会予以公示,广泛征求和听取利益相关者的意见和建议。如以上申请事项影响到或可能影响到您的权益,你应在公示期10天内(按公示当日时间计算)通过书面或电话形式向石家庄市自然资源和规划局鹿泉分局提出意见,利害关系人有申请听证的权利。相关查询请登录鹿泉区政府门户网站(),有效意见反馈途径为石家庄市自然资源和规划局鹿泉分局。
联系电话:石家庄市自然资源和规划局鹿泉分局 82189308
附:项目总平面图
2025年2月18日
